53 Woodstream Boulevard 1, Vaughan, ON L4L 7X6 (Highway 7 and Woodstream Blvd)

Price : $1,897,990.00 , MLS®# : N12897318

Judge Kirupairajah
Description

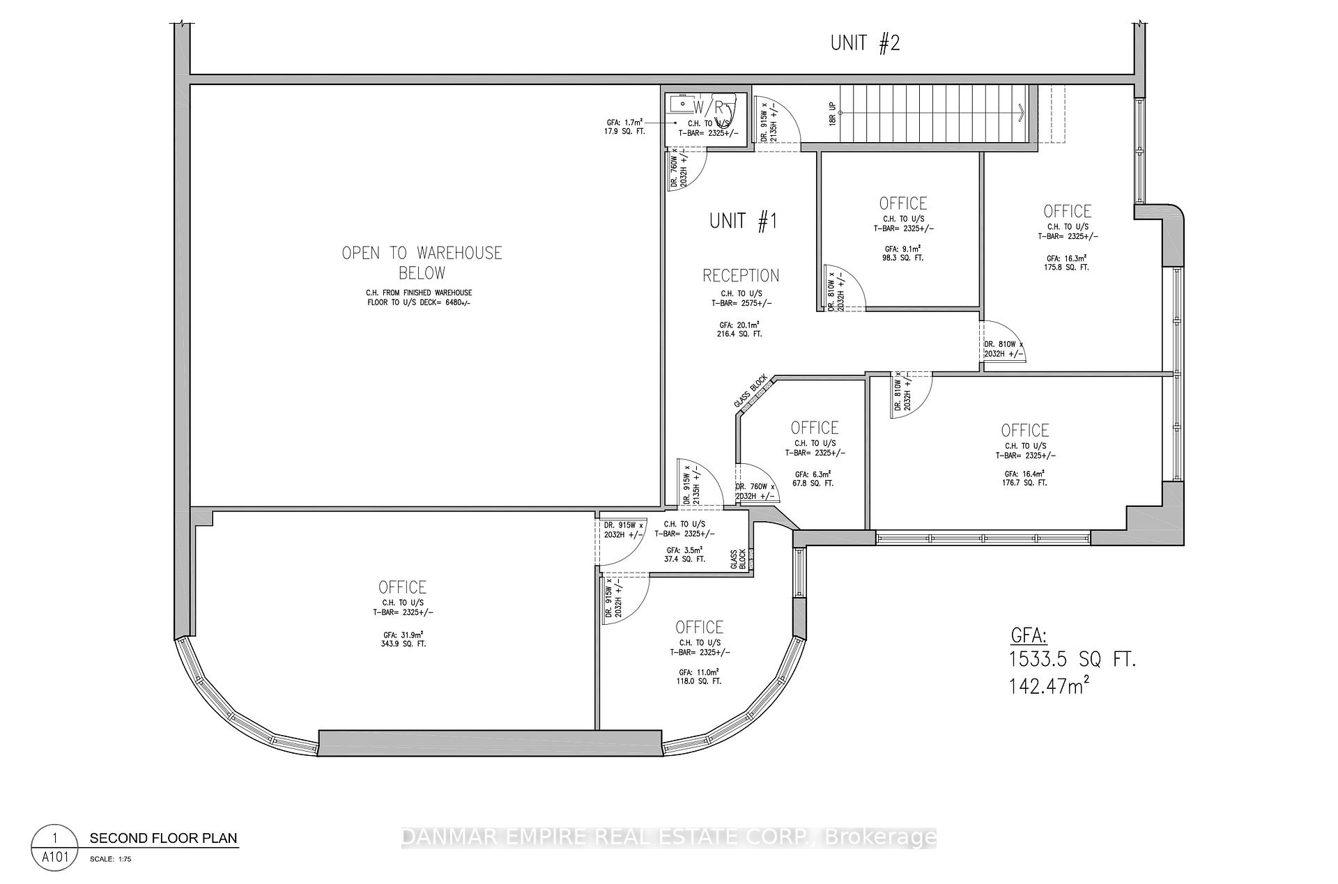
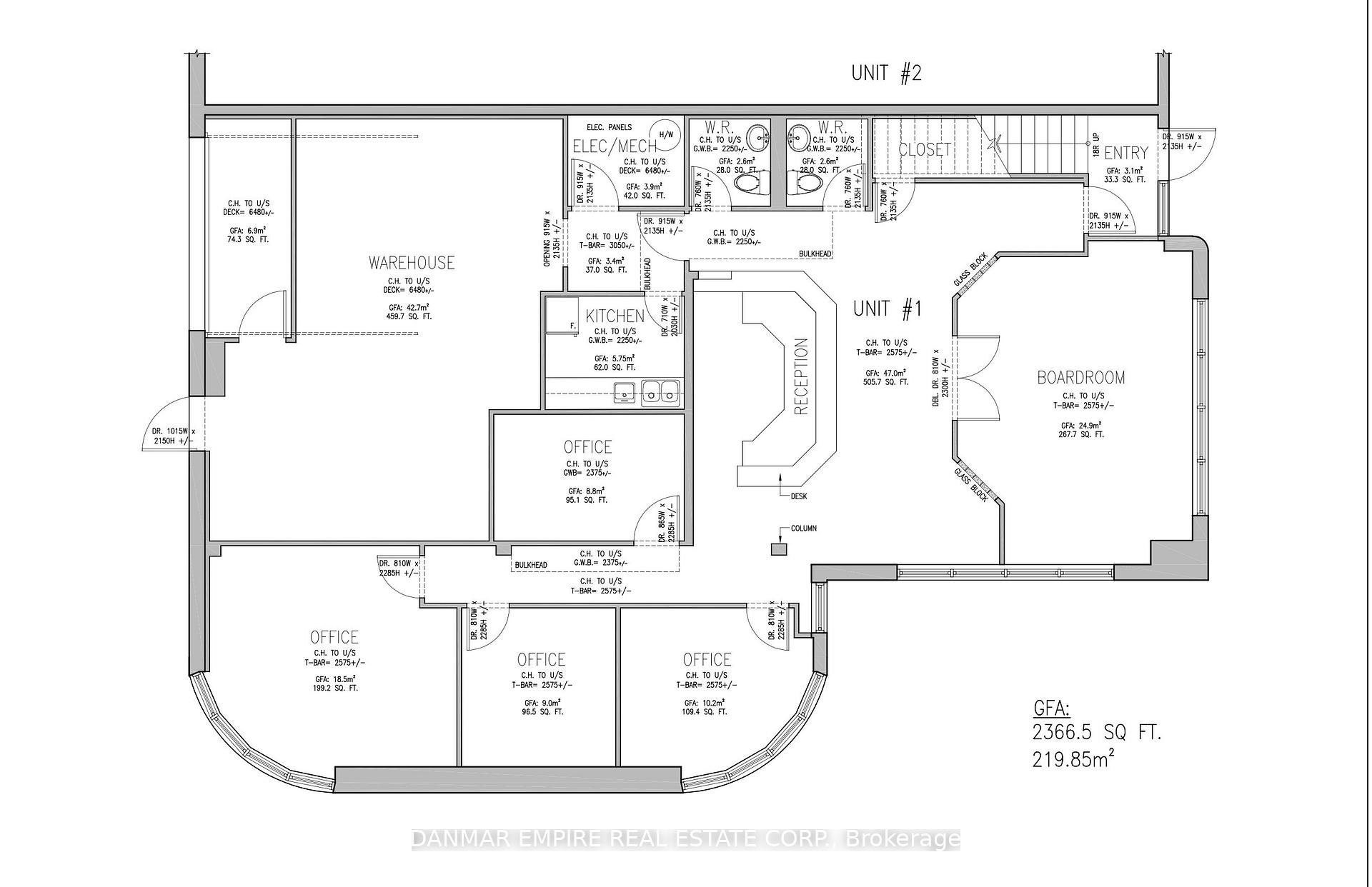
A rare opportunity to acquire a 3,900 sq ft corner unit in one of Vaughan's most sought-after commercial/industrial corridors. Currently tenanted by multiple occupants, this property generates strong, consistent monthly cash flow from day one, making it an attractive addition to any investment portfolio. The unit offers a premium blend of professional office space and functional industrial area within a well-maintained complex. Flooded with natural light from expansive windows, the beautifully finished interior is move-in ready and fully client-facing. The main floor features a reception desk, boardroom, full kitchen, four private offices, two washrooms, and a 460 sq ft industrial bay with a drive-in level door and man-door. The second floor adds five additional offices, a reception area, and a washroom, along with a private entrance and corner positioning that provides excellent visibility and curb appeal. The flexible zoning accommodates a wide range of uses, supporting everything from professional services and technology firms to light industrial operations, which adds long-term stability and demand for the space. Ownership options are equally versatile: continue operating the property as a fully tenanted income-generating investment, transition into partial owner-occupancy while retaining rental income from the remaining units, or take over the entire space for your own business operations. Situated in the heart of Vaughan with ample parking throughout and TMI included in rent, this property is ideally suited for law firms, accounting practices, real estate brokerages, IT and software companies, marketing agencies, and travel agencies. Minutes from Highways 400, 407, 7, and 27, with convenient access to the airport. Whether you are an investor seeking reliable cash flow or an owner-user looking to establish a corporate presence in Vaughan's thriving business community, this is a rare asset in a high-demand, low-supply market.

Location Description

Highway 7 and Woodstream Blvd

Property Details
  • Community: Vaughan Grove
  • Property Type: Tenant/Commercial
  • Bath: 3
  • Garages: Outside/Surface
  • Annual Property Taxes : $ 7560
Building Features
  • Parking Type : Outside/Surface
Building Features
  • Heating : Gas Forced Air Open
Land (Lot Features)
  • Frontage: 0 sq.ft
  • Land Depth: 0sq.ft
  • Square Footage : 2466

Listing Contracted With: DANMAR EMPIRE REAL ESTATE CORP.