Lot 14 Marcus Avenue, Southwest Middlesex, ON N0L 1M0 (Appin Rd/Stella Ave)

Price : $649,700.00 , MLS®# : X12909622

Judge Kirupairajah
Description

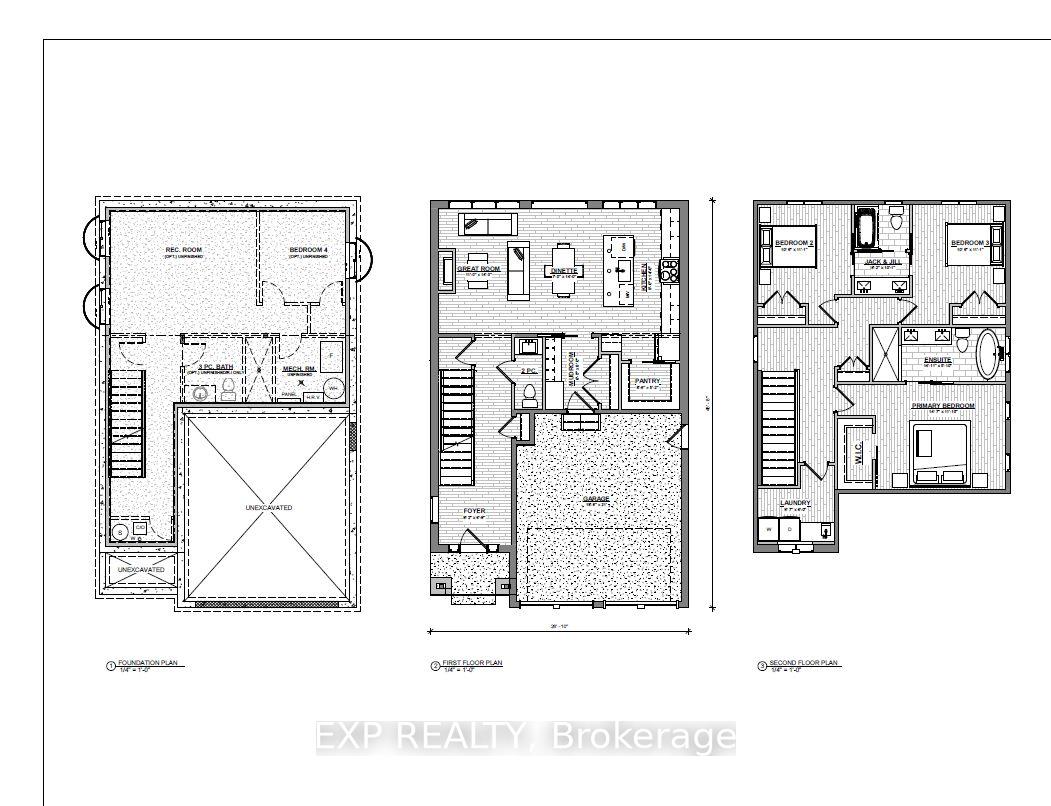
Carmo Building Group is now offering homes in Glencoe, bringing its signature craftsmanship and thoughtful designs to this growing Southwest Middlesex community. Proposed for Lot 14 Marcus Avenue, the Eras model features a classic brick and vinyl exterior and offers 1,794 sq ft of above-grade finished living space in a thoughtfully designed two-storey layout with a built-in double garage, set on a 36' x 124' lot. Inside, the main level is centred around open-concept living, with the kitchen, dining area, and great room flowing together for easy everyday living and entertaining, along with a pantry and practical mudroom for added function. Upstairs, the layout includes convenient second-floor laundry, a spacious primary suite with a walk-in closet and 5-piece ensuite, and two additional bedrooms connected by a semi-ensuite Jack and Jill-style bathroom. An unfinished full basement with rough-in bath offers future potential for added living space, while buyers also have the opportunity to work with Carmo Building Group on custom home options, subject to lot fit and zoning requirements.

Location Description

Appin Rd/Stella Ave

Property Details
  • Community: Glencoe
  • Property Type: Vacant/Residential Freehold
  • Bedrooms: 3
  • Bath: 3
  • Garages: Built-In
  • Annual Property Taxes : $ 0
Building Features
  • Foundation Type: Concrete
  • Counstruction Material : Brick-Vinyl Siding
  • Total Parking Space : 4
  • Parking Type : Built-In
Building Features
  • Heating : Forced AirGas
  • Sewer : Sewer ,
Land (Lot Features)
  • Frontage: 36 sq.ft
  • Land Depth: 124sq.ft

Listing Contracted With: EXP REALTY